Haworth + FMG
Commercial Design: 5 story building; 39,000 Sq.Ft
Located at 701 Pine Street on the corner of Sabine Street and East Fifth, Downtown Austin, Texas.
Software Used: Revit, Sketch-Up, Photoshop, InDesign
Network
The concept behind the design of the Austin, Texas Haworth and FMG firm is Network. The vision that drives this concept is the networking of the brain. Just as the brain brings together analytical and creative sides in order to present a complete experience, this network creates a seamless machine that is both functional and capable of great beauty and aesthetic.
Floor - Plan 1
There are two entrances into the Haworth and FMG office building. Entrances are on either side of the building. One is through the lobby and the other is on the side passageway. The formal entrance is through the lobby.
Walking in from the lobby there is a lounge space area that can be swapped out for other furniture to display the Haworth and FMG furniture line. As you go further down the space there is a kitchen area, workstations, phone rooms, open library, small conference rooms, print room, and huddle rooms.
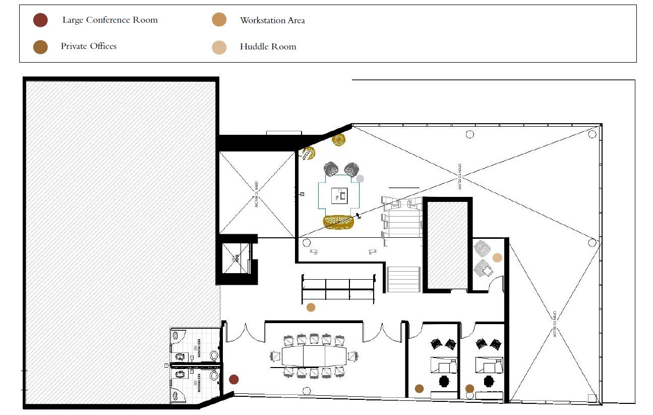
Floor - Plan 2
There are two ways to reach to the second floor. There is a grand staircase on the first floor that leads to the second floor. Also, from the lobby there is an elevator that goes to the second floor.
On the second floor there is the main large conference room, small workstation area, two private offices and a huddle room that overlooks the first floor.
Lighting Plan
The main lighting used for the space is the Ameba Chandelier. This chandelier is from Italy, and designed by Pete Sans. The Ameba chandelier connects with the concept “Network” because of its organic shape. In the open library and print room the Oriris Chandelier will be installed. This light fixture is a modern geometric chandelier that is designed by Thomas O’Brien.
Throughout the place the lighting will be controlled. This not only saves electricity but it also minimizes the amount of artificial light being used in the space. The space will also feel cooler because lighting up large spaces can increase the heat in the environment.

