Modern Town-Home
Residential
5 bedrooms, 4 full bath, 2 half baths
Austin, TX
Revit, Sketch-Up, Photoshop
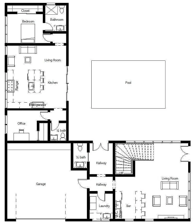
1st Floor
The Modern Town-home is located in Austin, Texas. This home is great for entertainment as the first floor is dedicated for hosting gatherings.
The entrance of the home leads into the first living room and bar area. The bar has a wine cooler, sink, and under the counter microwave. Calacatta quartz is used throughout the home for consistency.
The first floor also has a spacious laundry room, half bath, and access to the backyard. The backyard has a huge pool that aligns with the entrance of the guest house.
The guest house has two bedrooms, one full bath, and a half bath. There is a full functioning kitchen as well with high end appliances. There is also a two car garage on the side of the house. The garage is very spacious with a lot of storage.
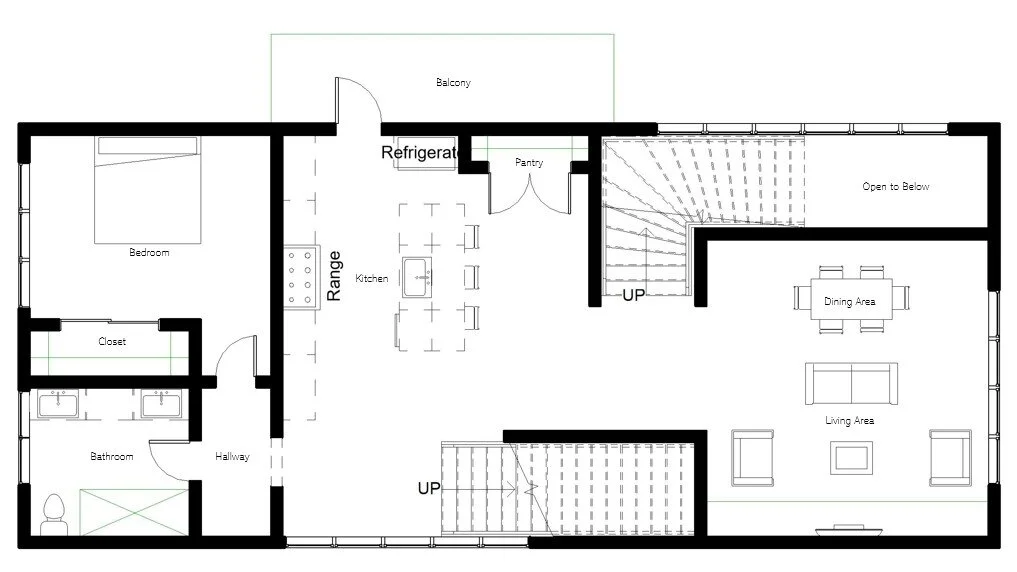
2nd Floor
The second floor of the town-home is the main area that residents would be using. It has a full functioning and spacious kitchen with high end appliances. Off to the side of the kitchen is a balcony that overlooks the backyard, pool and scenery.
A second living room is located on this floor. Next to the living space is the dining area. A spacious bedroom is also on the second floor with a full sized bathroom that has a walk in shower and two sinks.
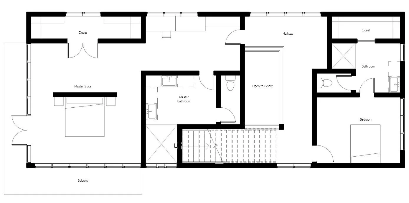
3rd Floor
The third floor is the dedicated bedroom floor. This floor only has two bedrooms. The first bedroom has access to a bathroom with a walk in shower and one sink vanity. Following through the bathroom is a spacious walk in closet.
The master suite is designed to be an oasis separate from the rest of the house. When you enter the master suite there is an office off to the side. Further into the room there is a wall divider where the bed faces the windows. This creates privacy within the space. The master bathroom has two sinks, and a spacious walk in shower.

